Centre Hospitalier SainteMarie Le PuyenVelay AHSM

Adresse : 12 boulevard du dr chantemesse. 43012 LE PUY EN VELAY CEDEX. Téléphone : 04 71 04 32 10. 04 71 04 33 70. Activité. Centres Hospitaliers. Imprimer la fiche.
PuyenVelay l'hôpital SainteMarie lance une application de suivi pour les schizophrènes La

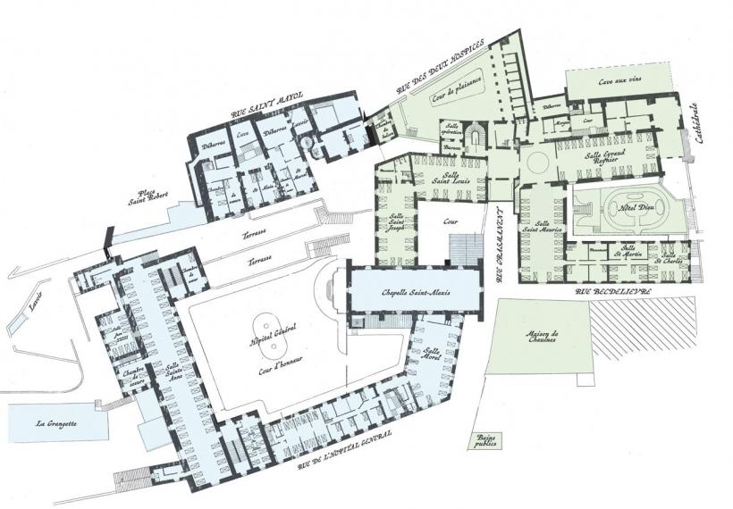
L'hôpital général du Puy-en-Velay est un monument situé dans la ville du Puy-en-Velay dans le département de la Haute-Loire. Le corps de logis principal avec ses avant-corps latéraux, le dortoir des hommes au premier étage, la salle Régence avec ses boiseries au rez-de-chaussée, la cour intérieure avec ses deux puits, les terrasses et leurs murs de soutènement, la chapelle sont.
L'hôpital du PuyenVelay à flux tendu en réanimation (vidéo) La Commère 43

Informations pratiques. 12, boulevard du Docteur Chantemesse. BP 20352. 43012 Le Puy-en-Velay cedex. 04 71 04 32 10. 04 71 04 33 70. direction@ch-lepuy.fr.
PuyenVelay le malaise se généralise à l'hôpital EmileRoux (vidéo) La Commère 43

Dans un contexte « de réduction des droits des chômeurs, d'inflation galopante, de guerre dans le monde et de montée de l'extrême droite », le.
[Concours] Reconstruction de l’EHPAD psychiatrique Marie Pia au Centre Hospitalier Sainte Marie

Le GIE des Hôpitaux du Velay a inauguré sa nouvelle blanchisserie à l'hôpital Emile-Roux au Puy-en-Velay. Cette nouvelle structure lave 5,3 tonnes de linge par jour. Pour cela, elle dispose d'un bâtiment de 2000m² et dessert 18 établissements de soins et médico-sociaux sur le département réunis dans Groupement d'intérêt économique des Hôpitaux du Velay.Située jusqu'en mai.
PuyenVelay ils fracturent des distributeurs de boissons à l'hôpital pour 250 € de petite

Votre recherche Entrez une Pathologie, un Examen, une Spécialité médicale, un nom d'établissement ou de médecin, etc.; Localisation Ma position Entrez un département, une région, une ville.; Valider. Masquer les résultats
HauteLoire. Le PuyenVelay afflux aux urgences de l’hôpital EmileRoux

Adresse. 12 Boulevard Docteur Chantemesse, 43000 Le Puy-en-Velay S'y rendre.
Grève illimitée des urgences l'hôpital du PuyenVelay rejoint le mouvement

Travailler au sein du Centre Hospitalier Sainte-Marie Le Puy-en-Velay, c'est avoir accès à de nombreux avantages, avoir la possibilité de booster votre vie professionnelle grâce aux formations et aux opportunités de carrières, de bénéficier d'œuvres sociales du CSE, d'accéder à des services internes riches et complets : restauration, bibliothèque, sport.
👍 EHPAD Centre Hospitalier Les patios du Velay Le PuyenVelay Mazette

Type d'établissement : CH. N° Finess : 430000117. Établissement de rattachement : CH EMILE ROUX LE PUY. AJOUTER AU COMPARATEUR. 12 Boulevard Du Dr Chantemesse. 43012 LE PUY EN VELAY. Tel : 0471043210. Voir sur la carte.
HauteLoire. Hôpital du PuyenVelay « Je suis venue renforcer mes collègues en secteur Covid

Consultation (CS) - Ch le puy - emile roux 12 Boulevard Docteur Chantemesse 43000 Le Puy-en-Velay.
HauteLoire. Les urgences de l’hôpital du PuyenVelay risquent la fermeture cet été

Le Centre Hospitalier Emile Roux (CHER, Le Puy-en-Velay / Haute-Loire) recherche deux PHYSICIEN(NE)S MEDICAL(E)S à 100% en CDI * Profil recherché :…
Un livre sur l'histoire hospitalière du PuyenVelay
Dans le contexte de son nouveau projet médical, le Centre Hospitalier Sainte-Marie du Puy-en-Velay s'inscrit dans une recherche constante de pratiques médicales pertinentes et innovantes, orientées vers la personnalisation de la prise en charge du patient.
du pôle médical Henri Dunant Bon Secours Le PuyenVelay CIM43

Présentation. Accueil des urgences - Ch le puy - emile roux 12 Boulevard Docteur Chantemesse 43000 Le Puy-en-Velay.
HauteLoire. PuyenVelay les deux urologues du département dotés d'un nouveau laser

Centre Hospitalier Emile Roux. Hospitalisation - Centre de médecine physique et réadaptation - Chirurgie - Consultations - Addictologie - Haute-Loire - 43 - Le Puy-en-Velay. Coordonnées. 12 boulevard Dr Chantemesse, BP 20352. 43012 Le Puy-en-Velay Cedex.
L'hôpital du PuyenVelay à flux tendu en réanimation (vidéo) La Commère 43

CENTRE HOSPITALIER LE PUY EMILE ROUX. BP 20352. 12 BOULEVARD DU DR CHANTEMESSE. 43012 LE PUY EN VELAY CEDEX. Spécialités de l'établissement.
Pourquoi les urgences de l’hôpital du PuyenVelay ferment partiellement la nuit

Accueil - CH Le Puy. Urgences régulées jusqu'au dimanche 30 juin 2024 inclus. Pour toute urgence, composez le 15.